Misurazione in cantiere
Il nostro obiettivo principale è offrire un servizio che soddisfi e superi le aspettative del cliente. MG offre una soluzione completa, prendendosi cura di ogni fase, dalla misurazione in cantiere fino all'installazione. Che tu stia appena iniziando a valutare la possibilità di un progetto o che tu sia pronto a fare il grande passo, saperne di più sul nostro flusso di lavoro per la realizzazione di mobili su misura è sempre un passo prezioso. Su questa piattaforma, troverai approfondimenti sul nostro approccio progettuale collaborativo con te, oltre a una descrizione dettagliata dei passaggi che trasformano le tue idee concettuali in un sistema di mobili completamente installato.
Una misurazione accurata è il fondamento di un ottimo design della cucina. Un'attenzione meticolosa ai dettagli delle misurazioni è essenziale per garantire che la tua cucina si adatti perfettamente al tuo spazio. Se non hai assistenza con questa attività, possiamo aiutarti a misurare la planimetria della tua cucina, anche se dovrai coprire i costi associati. Detto questo, ti consigliamo comunque di chiedere a qualcuno di gestire questo passaggio, se possibile.
Di seguito sono riportate delle semplici linee guida per aiutarti a misurare la tua cucina.
Prima di effettuare le misurazioni, assicurarsi che tutti i lavori su pareti, pavimenti e soffitti siano stati completati, inclusi la posa delle piastrelle, l'intonaco e l'installazione delle modanature. Inoltre, verificare l'esatta posizione di tubi, prese elettriche e allacciamenti del gas.
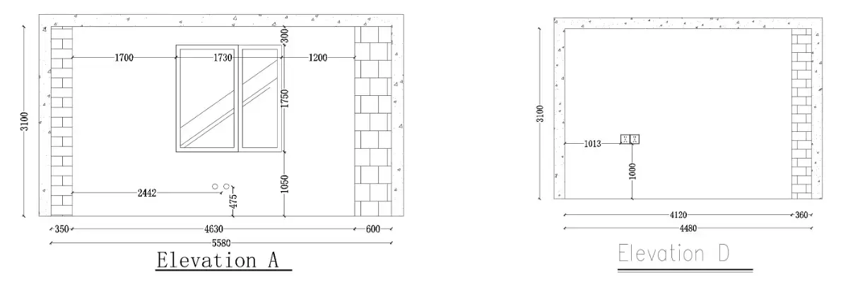
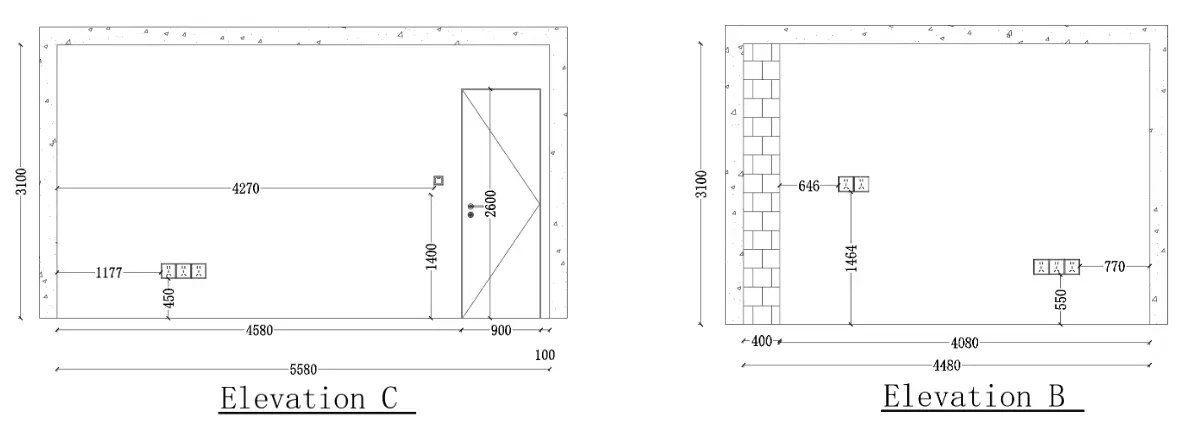
01 Fase 1: Disegna il contorno della stanza ed etichetta le lunghezze delle pareti
Inizia creando uno schizzo di base della tua cucina: non deve essere perfettamente in scala, ma dovrebbe riflettere la forma generale della stanza. Quindi, aggiungi le posizioni approssimative di ogni finestra e porta per rispecchiare la disposizione dello spazio. Una volta completato lo schema, scrivi l'intera lunghezza di ogni parete sulla parte corrispondente dello schizzo.
02 Fase 2: etichettare e misurare porte e finestre
Concentratevi poi su porte e finestre: per le porte, assicuratevi di misurare la distanza tra il bordo della porta e il soffitto e le pareti adiacenti; per le finestre, misurate la distanza tra il bordo della finestra e le pareti circostanti, il soffitto superiore e il pavimento inferiore.
03 Fase 3: contrassegnare e misurare gli ostacoli fissi
A. Sul diagramma della cucina, disegna piccole caselle per contrassegnare le posizioni approssimative di eventuali ostacoli che non possono essere spostati o che non vuoi spostare, inclusi radiatori, prese d'aria, tubi, tubature esposte e altro ancora. Etichettare chiaramente ciascuna casella (ad esempio "radiatore", "tubo") in modo da poter identificare quale sia ciascuna ostruzione.
B. Misurare ogni ostacolo e annotarne larghezza, altezza e profondità direttamente sul diagramma. Se un ostacolo si estende fino al soffitto, non è necessario registrarne l'altezza. Se non tocca il pavimento, aggiungere una misura dal pavimento alla base dell'ostacolo.
C. Misura due distanze chiave per ogni ostacolo e segnale sul tuo disegno: prima, la distanza dal muro più vicino al bordo più vicino dell'ostacolo (misurare dal punto più vicino del muro al punto più vicino dell'ostacolo); secondo, la distanza dal secondo muro più vicino al bordo più vicino dell'ostacolo.
04 Passaggio 4:Misurare l'altezza del soffitto
Questo passaggio è particolarmente importante per le case più vecchie: consigliamo di misurare il soffitto in diversi punti, perché anche all'interno della stessa cucina le altezze dei soffitti possono talvolta variare di diversi centimetri.
Assicurati di prendere le misure in tutti e quattro gli angoli della stanza, più l'area centrale. Annota ogni misura direttamente sul tuo diagramma, esattamente dove l'hai presa. Infine, disegna un cerchio attorno a ogni numero: questo cerchio ci farà sapere che si tratta delle misure dell'altezza del soffitto.

05Passaggio 5:Controlla le tue misure
Dopo aver completato tutte le misurazioni, prenditi il tempo di ricontrollarle: questo aiuta a evitare errori. Se la tua cucina è rettangolare, somma le misure delle due pareti parallele (pareti che si fronteggiano) e assicurati che i totali corrispondano, o almeno siano molto vicini.
Ad esempio, nel nostro diagramma di esempio, dovresti prima calcolare la lunghezza totale della parete superiore sommando le sue singole misure. Poi fare lo stesso per la parete inferiore. Una volta ottenuti entrambi i totali, confrontali per verificare se sono coerenti.
Ecco cosa significano le etichette sul tuo diagramma.
Personalizza armadi unici nel loro genere, costruisci la casa dei tuoi sogni
Condividi il tuo sogno, noi lo progettiamo.





